logo AV Transaction

Photos du bien

Villa à vendre  - 7 pièce(s) - 135m2 - Aigne (34210)
ExclusivitéPiscine

257 000

Villa à vendre - 7 pièce(s) - 135m2 - Aigne (34210)

Villa indépendante (135 m²) avec jardin 1611 m² à Aigne (34210)

Théodorus HARBERS

Théodorus HARBERS

Agent en charge de la vente.

Référence: 7501819288

Mandat: 13931

Description de l'annonce

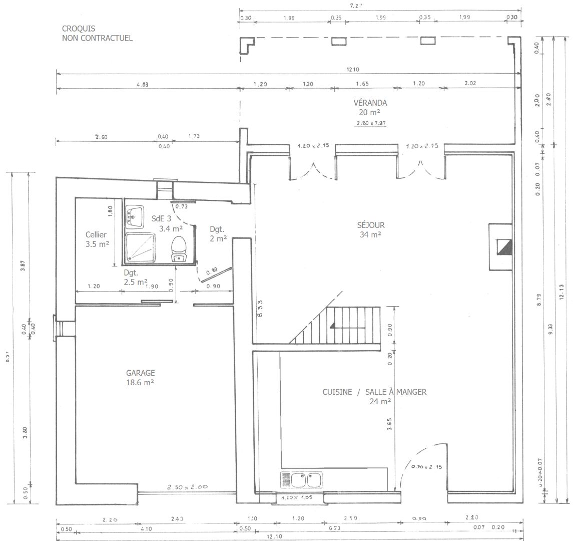
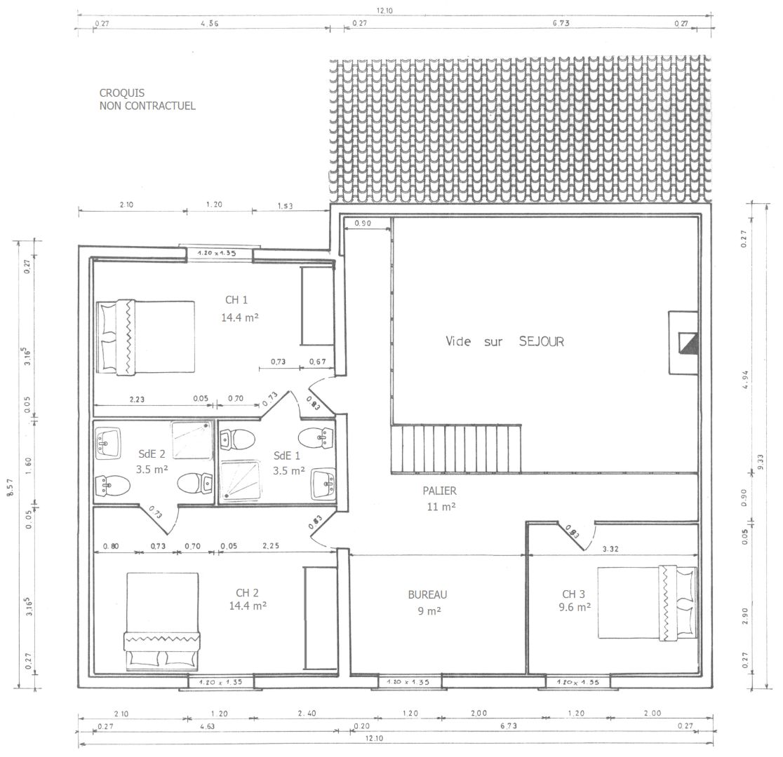
Villa indépendante (135 m²) avec vue dégagée, 3 chambres, 3 salles d'eau, climatisation, piscine, garage, abri voiture et jardin (1611 m²) à Aigne (34210 - Hérault) Cette villa (anno 1993) avec jardin ensoleillé et plusieurs terrasses offre une belle vue dégagée. Située à la périphérie du village d'Aigne. Le grand terrain, à l'arrière du jardin avec des oliviers, offre encore diverses possibilités d'extension et de construction supplémentaire. La maison est en bon état. Rez-de-chaussée : L'entrée donne directement sur la salle à manger et la cuisine ouverte (24 m²). La cuisine est équipée d'une cuisinière à gaz indépendante à cinq feux en acier inoxydable avec four et hotte aspirante, d'un réfrigérateur, d'un réfrigérateur à vin, d'un lave-vaisselle et d'un four à micro-ondes combiné. Vient ensuite le salon (34 m²) avec son haut plafond à poutres apparentes et son poêle à bois chaleureux. Un escalier en bois mène à la mezzanine et deux doubles portes-fenêtres donnent sur la véranda (20 m²) avec des baies vitrées coulissantes. Un petit couloir ouvert (2 m²) mène à la salle de bains avec douche, lavabo et toilettes (3.4 m²) et à un deuxième passage (2.5 m²), au garage (18.6 m²) et à l'arrière-cuisine (3.5 m²) avec lave-linge, congélateurs, chaudière à gaz pour le chauffage central et le chauffage au sol de la cuisine, de la salle à manger et du salon, et chauffe-eau. Étage : En haut de l'escalier, le palier (11 m²), deux chambres (2 x 14 m²) avec placards et salles de bains privatives (2 x 3.5 m²) avec douche, lavabo, toilettes, bidet et espace de rangement au-dessus. Mezzanine avec bureau (9 m²), à l'origine une chambre supplémentaire. Enfin, la troisième chambre (9.6 m²) avec placard. Dans la mezzanine, un climatiseur est installé pour rafraîchir l'ensemble de la maison. À l'extérieur : Devant la cuisine se trouve une terrasse ( m²) exposée au soleil du matin. Devant la véranda se trouve une terrasse abritée (28 m²) et à côté une terrasse (20 m²) avec barbecue fixe. Le portail d'entrée et la voie d'accès sont partagés avec la maison voisine et il y a suffisamment de place pour garer plusieurs voitures. Un abri pour 1 voiture et un espace de rangement supplémentaire se trouvent à côté de la maison. Dans le jardin, un abri de jardin en pierre (9.9 m²) avec un abri à bois semi-ouvert (7.8 m²). Au fond du jardin se trouve la piscine ronde hors sol (4.75 m) avec un local (6.7 m²) pour le filtre à sable et les outils de jardinage. Divers : La maison est équipée de carrelage, de fenêtres et de portes en aluminium et en bois avec double vitrage et volets en bois. Raccordement au réseau d'égouts municipal et à Internet par fibre optique. La cuisine et les sanitaires sont équipés d'une ventilation centrale. Antenne parabolique ASTRA-1 et 3 pour la réception satellite. Environnement : Aigne possède un beau centre villageois du XIe siècle avec une église romane, un restaurant, un magasin et un bureau de poste. Petite supérette à 1 km à Aigues-Vives. À Olonzac (8 km), vous trouverez un grand supermarché, un marché le mardi matin, des banques, des pharmacies et d'autres magasins. À proximité de l'un des plus beaux villages de France, la cité cathare de Minerve et les Gorges de la Cesse et Brian. La mer Méditerranée, les aéroports et les villes de Narbonne, Béziers et Carcassonne sont accessibles en moins d'une heure en voiture. Frais : Taxes foncières : 974 € par an Honoraires charge vendeur.
« Les informations sur les risques auxquels ce bien est exposé sont disponibles sur le site Géorisques : www.georisques.gouv.fr ».
Théodorus HARBERS a le statut d'agent commercial indépendant immatriculé(e) au registre spécial des agents commerciaux (EI). Votre agent commercial est mandaté conformément à la loi Hoguet par la société AVT, titulaire de la Carte professionnelle CPI 7501 2016 000 015 447 CCI de Paris Île-de-France.

Caractéristiques générales

  • Type de bienVilla
  • Pièces7
  • Chambres3
  • Surface habitable135 m2
  • Surface terrain-
  • Niveaux1
  • Salles de bains0
  • Salles d'eau3
  • WC0

Spécificités

  • Nature chauffageindividuel gaz mixte
  • Balcon0
  • AscenseurNon
  • Garage1
  • PiscineOui
  • ViagerNon

Détails du prix

  • Prix affiché257 000 €
  • Honoraires à la charge duVendeur
  • Barème honorairesVoir le barème
  • Référence du bien7501819288 (20250909)
  • Mandat13931

Performance énergétique

Performance énergétique

en énergie primaire.

175 kWh/m².an

|

23 kg CO₂ /m².an

  • A
  • B
  • C
  • D
  • E
  • F
  • G

Consommations énergétiques (en énergie primaire) pour le chauffage, la production d'eau chaude sanitaire et le refroidissement (Indice de mesure : kWhEP/m2.an)

Performance climatique

dont indice d'émission de gaz à effet de serre.

23 kg CO₂ /m².an

  • A
  • B
  • C
  • D
  • E
  • F
  • G

Émissions de gaz à effet de serre (GES) pour le chauffage, la production d'eau chaude sanitaire et le refroidissement (Indice de mesure : kgeqCO2/m2.an)

Informations sur la copropriété

  • Bien en copropriétéNon
  • Nombre de lots-
  • Quote-part annuelle de charges-
  • Procédure en cours-

Localisation du bien

Aigne (34210)

Simuler mon prêt

20 % du prix total recommandé.

%
25 ans
5 ans25 ans

Mensualités :

1 120 € /mois*


Montant de l'emprunt :

226 160 €

Coût des intérêts :

109 840 €

(taux d'intérêt annuel moyen : 3.4 %)

Frais de notaire :

20 560 €

(8 % du prix de vente dans l'ancien)

*Les données de ce simulateur sont indicatives et non contractuelles. Calcul hors assurance et frais de garantie.

Théodorus HARBERS

Contactez votre conseiller immobilier Théodorus HARBERS

Vous souhaitez obtenir de l'aide dans votre projet immobilier, des renseignements ou même établir une estimation de votre bien. N'hésitez pas à contacter Théodorus HARBERS.

Voir son mini-site
Les données que vous transmettez sont traitées par AV Transaction en qualité de responsable du traitement. Vous disposez d’un droit de rectification, d’opposition, d’effacement, de limitation et de portabilité de vos données. Pour en savoir plus sur le traitement de vos données par AV Transaction et sur vos droits, veuillez consulter la politique de protection des données.

Quel est le prix moyen au m2 à Beaufort ?

Vous avez une question ? Vous souhaitez connaitre le prix de votre bien ?

Notre réseau de conseillers immobilier est noté 4.8 / 5 par Meilleurs Agents.

Découvrez nos offres pour les professionnels de l'immobilier.Contactez-nous pour obtenir plus d’informations.

“La flexibilité de l'offre me permet d'être serein lorsque l'activité est plus calme.”